Версия сайта
EN RU
35
еще фото

Купить яхту ORION | Яхтенный брокер - NAU Yachts

ORION
Van Der Valk / 24,6 м / 2014 / Черногория
/ Цена €2 290 000 (НДС выплачен)
Описание

Построенная в Нидерландах верфью Van der Valk в 2014 году, моторная яхта ORION — полукастомный проект серии Continental II, отличающийся увеличенной шириной корпуса и флайбриджем с хардтопом. Корпус и надстройка из алюминия, выполненные по стандарту CE Category A, обеспечивают прочность, устойчивость и высокие ходовые качества.

В 2023 году яхта прошла полный рефит, включавший обслуживание всех систем и обновление интерьера. Классический викторианский стиль получил современное звучание с использованием новой отделки, мягкой мебели и освещения.

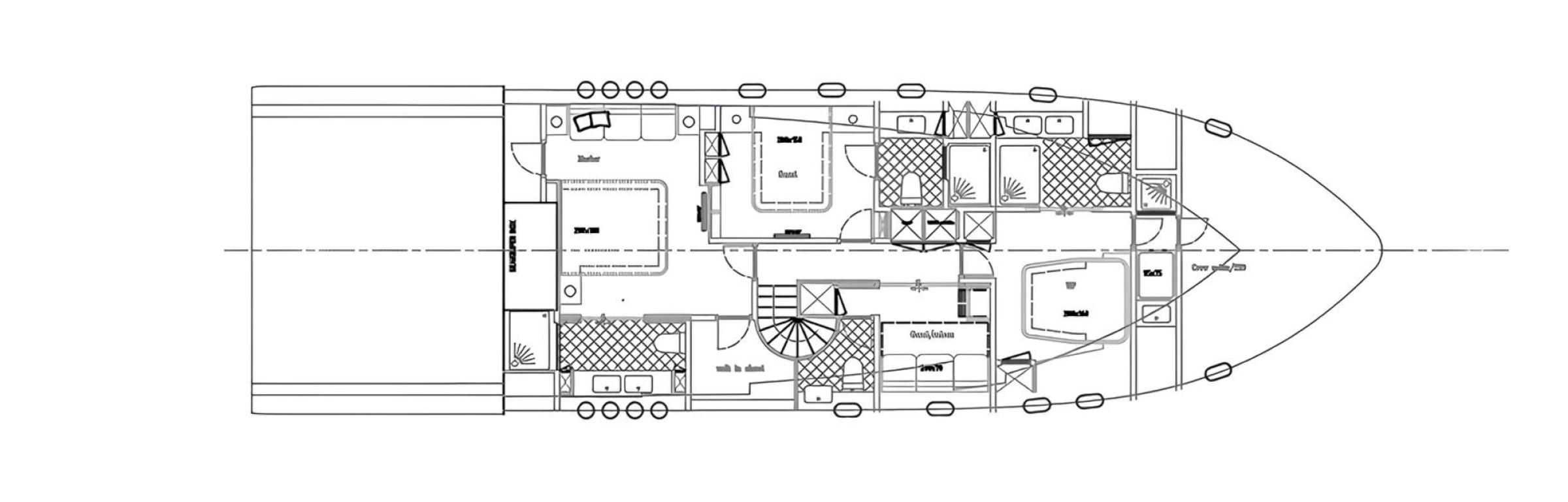
Планировка рассчитана на восьмерых гостей в четырёх каютах, включая мастер и VIP-каюты во всю ширину корпуса. Просторный салон объединяет лаунж и обеденную зоны, а внешние палубы предлагают разнообразные места для отдыха — кокпит с обеденной зоной, флайбридж с баром и носовую зону для загорания.

Три дизельных двигателя Volvo Penta D13-800 обеспечивают крейсерскую скорость 21,5 узла и максимальную 26,7 узла. Среди оснащения — Seakeeper M21000, гидравлическая платформа, опреснитель воды, навигация Simrad и акустическая изоляция Delta DB.

После рефита 2023 года ORION представлена в превосходном состоянии и полностью готова к эксплуатации

Спецификация
ВЕРФЬ , МОДЕЛЬ
Van Der Valk Continental II
ГОД ПОСТРОЙКИ
2014
ДЛИНА
24,6 м
ДЛИНА ПО ВАТЕРЛИНИИ
18,7 м
ТИП КОРПУСА
ГЛИССИРУЮЩИЙ
ШИРИНА
6,25 м
ЗАПАС ХОДА
1500
ОСАДКА
1,35 м
ТОННАЖ
N/A
КЛАСС ЯХТЫ
CE (A)
КАЮТ
4+1
МАСТЕР-КАЮТА
НИЖНЯЯ ПАЛУБА
ГОСТЕЙ
8
СПАЛЬНЫХ МЕСТ
8+2
ЭКИПАЖ
2
САНУЗЛОВ
4+1
ДИЗАЙН ЭКСТЕРЬЕРА
WIM VAN DER VALK CONTINENTAL YACHTS
ДИЗАЙН ИНТЕРЬЕРА
WIM VAN DER VALK CONTINENTAL YACHTS
КОРПУС
АЛЮМИНИЙ
НАДСТРОЙКА
АЛЮМИНИЙ
ДВИГАТЕЛИ
3 x Volvo Penta D13 800 л.c.
ТИП ПРИВОДА
VOLVO PENTA IPS
МОТОЧАСЫ
929 ч
МАКСИМАЛЬНАЯ СКОРОСТЬ
26,7 узл
КРУИЗНАЯ СКОРОСТЬ
21,5 узл
РАСХОД НА ЭКОНОМИЧЕСКОЙ СКОРОСТИ
N/A
ЗАПАС ТОПЛИВА
12500 л
БАК СЕРЫХ ВОД
800 л
БАК ЧЕРНЫХ ВОД
800 л
ЗАПАС ВОДЫ
1600 л
ВОДОИЗМЕЩЕНИЕ
65
СИСТЕМА СТАБИЛИЗАЦИИ
ГИРОСКОП
Галерея
Планы палуб
Поделиться этой страницей
Вам также могут понравиться

Свяжитесь с нами

 

Пожалуйста, переверните устройство.
Это необходимо для корректного отображения сайта.