Website version
EN RU
18
more photos

Buy the yacht B130 | Yacht broker - NAU Yachts

B130
Bering / 39.62 m / 2029 / Turkey
/ Price on application
Description

B130 is a 39.62-metre transoceanic motor yacht currently under construction by Bering Yachts. Designed for long-range autonomous cruising, she is built to operate confidently in remote regions and across extended ocean passages.

Powered by twin MAN D2862LE427 diesel engines (900 hp each), B130 reaches a top speed of approximately 14 knots and cruises efficiently at around 10 knots. At economical speed, her range extends to approximately 4,500 nautical miles, making her well suited for transatlantic voyages.

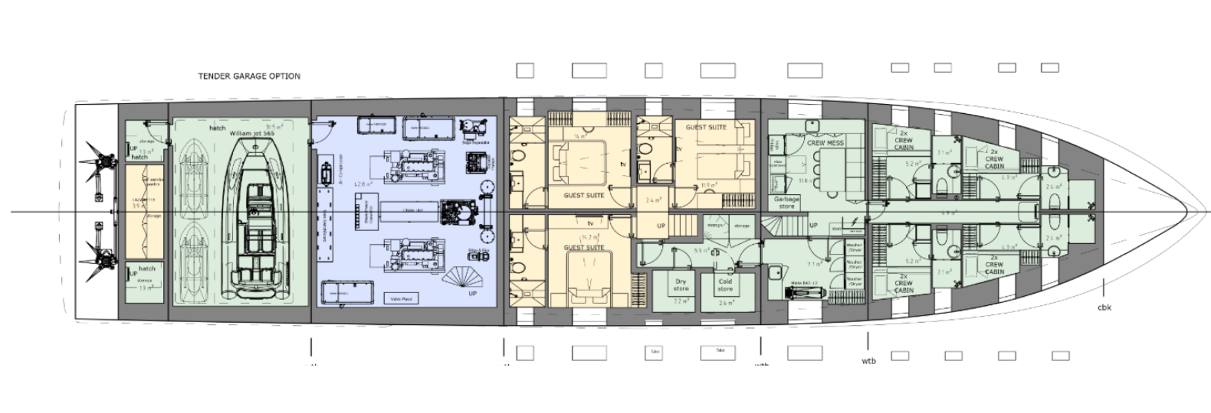
Accommodation is arranged for up to 12 guests across six staterooms. The full-beam master suite is located on the upper deck, offering a level of space and comfort typically found on significantly larger yachts. Guest accommodation can be configured to suit a variety of operational profiles, from private cruising to charter use, depending on owner preferences. Crew quarters for up to nine are arranged across five cabins with dedicated service areas, ensuring a professional level of service and efficient operation during extended journeys.

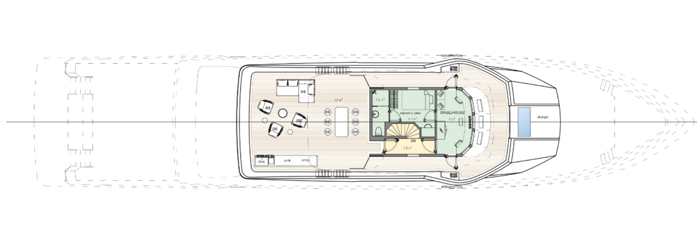
The main saloon integrates lounge and dining areas into an open-plan layout with direct access to the exterior decks. Deck architecture is designed for ease of movement, clear zoning, and flexible use of space across different onboard scenarios.

Purpose-built for exploration, B130 combines long-range capability, robust engineering, and generous internal volume - offering a balanced platform for owners seeking independence, reliability, and extended ocean cruising capability.

Specification
SHIPYARD , MODEL
Bering B130
DELIVERY AT THE SHIPYARD
2029
LENGTH
39.62 m
WATERLINE LENGTH
38.3 m
HULL CONFIGURATION
DISPLACEMENT
BEAM
7.92 m
RANGE
4500
DRAFT
2.44 m
GROSS TONNAGE
399 GT
YACHT CLASS
BV OR RINA
CABINS
6+5
MASTER CABIN
UPPER DECK
GUESTS
12
BERTHS
12+9
CREW
9
HEADS
7+5
EXTERIOR DESIGN
BERING YACHTS
INTERIOR DESIGN
BERING YACHTS
HULL
STEEL
SUPERSTRUCTURE
ALUMINIUM
ENGINES
2 x MAN D2862LE427 900 h.p.
TYPE OF DRIVE
SHAFT LINE
ENGINE HOURS
N/A
MAXIMUM SPEED
14 kn
CRUSING SPEED
10 kn
FUEL CONSUMPTION AT ECONOMICAL SPEED
N/A
FUEL
56550 l
GREY WATER
N/A
BLACK WATER
N/A
FRESH WATER
9100 l
DISPLACEMENT
420
STABILIZATION SYSTEM
FIN STABILIZERS
Gallery
General Arrangement
Share this page
YOU MAY ALSO LIKE

ENQUIRE NAU

 

Please turn the device over.
This is necessary for the site to display correctly.