Версия сайта
EN RU
12
еще фото
Amer / 31,2 м / 2027 / Италия
/ Цена по запросу
Описание

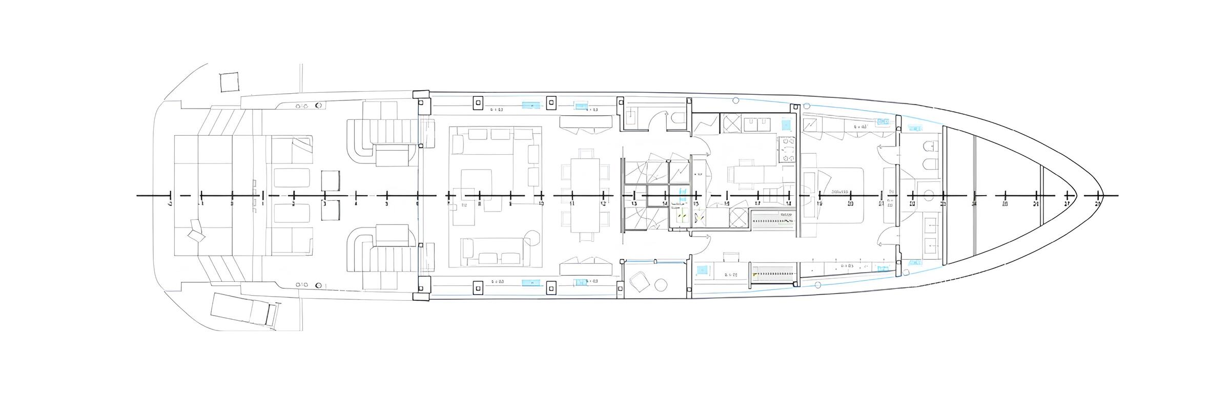
Amer F106 - новый проект верфи Amer Yachts, находящийся на стадии строительства с планируемой передачей владельцу в 2026 году. Ширина около 7 метров обеспечивает значительный внутренний объём. Главная палуба включает салон во всю ширину корпуса с панорамным остеклением, мастер каюту также во всю ширину и камбуз по левому борту. На нижней палубе расположены четыре гостевые каюты и зоны экипажа. Всего на борту могут разместиться до 10 гостей в пяти каютах.

Внешние пространства спроектированы с акцентом на жизнь у воды. Кормовая лаунж-зона плавно переходит в кокпит, откуда по двум лестницам осуществляется подъём на флайбридж длиной около 10 метров. Здесь размещены пост управления, обеденная зона и несколько лаунж-пространств для отдыха и загорания - как в кормовой части, так и перед постом управления. В носовой части также предусмотрена большая зона загорания. Тендер размещается в кормовом гараже.

Amer F106 оснащается силовой установкой Volvo Penta IPS - в зависимости от конфигурации возможна установка четырёх агрегатов IPS 1350 или IPS 40. Такая схема обеспечивает крейсерскую скорость порядка 24 узлов и максимальную до 28 узлов, а также высокую манёвренность, сниженный уровень вибраций и оптимизированный расход топлива. 

Спецификация
ВЕРФЬ , МОДЕЛЬ
Amer F106
ГОД ПОСТРОЙКИ
2027
ДЛИНА
31,2 м
ДЛИНА ПО ВАТЕРЛИНИИ
N/A
ТИП КОРПУСА
ГЛИССИРУЮЩИЙ
ШИРИНА
7 м
ЗАПАС ХОДА
2700
ОСАДКА
1,95 м
ТОННАЖ
90 GT
КЛАСС ЯХТЫ
CE CLASS A
КАЮТ
5+2
МАСТЕР-КАЮТА
ГЛАВНАЯ ПАЛУБA
ГОСТЕЙ
10
СПАЛЬНЫХ МЕСТ
10+2
ЭКИПАЖ
4
САНУЗЛОВ
5+2
ДИЗАЙН ЭКСТЕРЬЕРА
ANTONIO LUXARDO
ДИЗАЙН ИНТЕРЬЕРА
AMER YACHTS
КОРПУС
СТЕКЛОПЛАСТИК
НАДСТРОЙКА
АЛЮМИНИЙ
ДВИГАТЕЛИ
4 x Volvo Penta IPS 1330 л.с.
ТИП ПРИВОДА
VOLVO PENTA IPS
МОТОЧАСЫ
N/A
МАКСИМАЛЬНАЯ СКОРОСТЬ
28 узл
КРУИЗНАЯ СКОРОСТЬ
24 узл
РАСХОД НА ЭКОНОМИЧЕСКОЙ СКОРОСТИ
N/A
ЗАПАС ТОПЛИВА
9200 л
БАК СЕРЫХ ВОД
N/A
БАК ЧЕРНЫХ ВОД
N/A
ЗАПАС ВОДЫ
2000 л
ВОДОИЗМЕЩЕНИЕ
N/A
СИСТЕМА СТАБИЛИЗАЦИИ
ГИРОСКОП
Галерея
Планы палуб
Поделиться этой страницей
Вам также могут понравиться

Свяжитесь с нами

 

Пожалуйста, переверните устройство.
Это необходимо для корректного отображения сайта.